NOTICIAS Y PROMOCIONES
-
MiA Ingenieros inaugura parque solar fotovoltaico en el término municipal de Villarrobledo (Albacete)
- Agosto de 2008
-
- Se inaugura el parque solar Las Lomas de 1,2MW, ubicado en el término municipal de Villarrobledo, se trata de una instalación móvil.

-
MiA termina y pone en marcha parque solar fotovoltaico en Villena (Alicante)
- Septiembre de 2008
-
- Se pone en marcha el parque solar Los Almendros en el término municipal de Villena (Alicante) con una potencia de 3.500kW y una superficie de 70.000m². Se trata de una instalación fija con placas a tres alturas.

-
MiA termina y pone en marcha parque solar fotovoltaico en Viver (Castellón)
-
- Se pone en marcha el parque solar Las Quinchas en el término municipal de Viver (Castellón) con una potencia de 1.200kW y una superficie de 33.000 m². Se trata de una instalación fija con placas a dos alturas.

-
Alquiler y venta de naves en Náquera
- Agosto de 2008
-
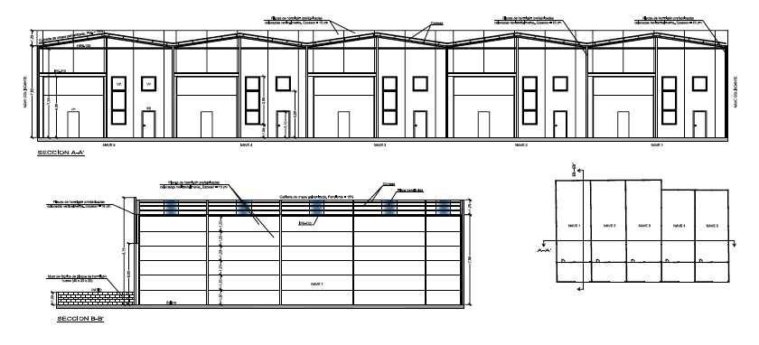
- Promoción de 4 naves de estructura metálica aporticadas a dos aguas con una superficie cada una de ellas de 530m² construidos, con altura de cumbrera de 8,77m.
Descargar el plano en PDF
-
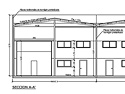
- Promoción de 5 naves industriales de estructura metálica aporticadas a dos aguas con una superficie aproximada de 300m² construidos, con altura de cumbrera de 8,60m.
Descargar el plano en PDF
-
Alquiler y venta de suelo terciario en San Antonio de Benageber junto autovía A-35
- Agosto de 2008
-
- Contacte con nosotros si desea ampliar esta información.

-
Alquiler y venta de suelo industrial en Carlet
- Agosto de 2008
- Contacte con nosotros si desea ampliar esta información.

-
Alquiler y venta de naves en L’Alcudia
- Agosto de 2008
-
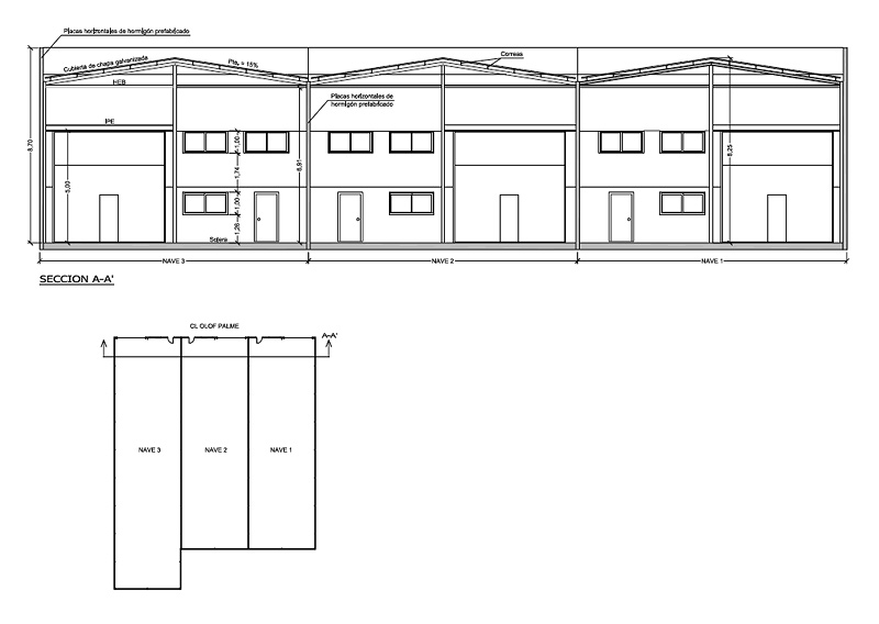
- Promoción de 3 naves de estructura metálica aporticadas a dos aguas con superficies entre 450 y 525m² construidos y altura de cumbrera de 7,20m.
Descargar el plano en PDF
|
NOTICIAS Y PROMOCIONES
|